 |
2006年3月
基礎工事
地面を少し掘り下げて、石組みを行う
石は畑にあった積み石を利用
基礎部分の計画は、ピザやパンの出し入れを行うのに低すぎない程度まで積み上げることとした
(約80cm) |
 |
2006年3月
基礎工事
石組みを行った中に土・砂利を入れる
石組みが崩れないように波板と石の隙間にセメントを流し込み、針金で補強
(波板はセメントが固まったら取り外しました) |
 |
2006年3月
基礎工事
外周に石を積み続け、セメントを流し込み土砂をつめる
畑の石では足りなくなったために、近所の石材所にて野積の石を格安で購入 |
 |
2006年3月
基礎工事
石組み続行中 |
 |
2006年3月
基礎工事
石組み続行中 |
 |
2006年3月
基礎工事 |
 |
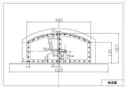
2006年4月
石窯レンガ組み設計図(上面図)
レンガは規格形を切断し、ドーム状に組むこととした
なお、レンガとレンガの隙間に耐火セメントを使用しないこととして設計した
蓄熱性能を重視するために、レンガの長手方向が窯の厚みとなるように配置 |
 |
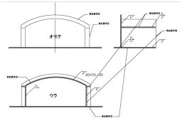
2006年4月
石窯レンガ組み設計図(断面図)
レンガ使用個数:
耐火レンガSK32−約370個
断熱レンガB5−約50個 |
 |
2006年4月
基礎工事
積み上げ完了間近 |
 |
2006年4月
基礎工事
積み上げ完了間近 |
 |
2006年4月
基礎工事
計画の高さに到達 |
 |
2006年4月
基礎工事 |
 |
2006年4月
基礎工事 |
 |
2006年4月
基礎上部コンクリート打ち
(普通ポルトランドセメント)
水平を出し、表面を平らにするのが重要 |
 |
2006年4月
基礎完成 |
 |
2006年4月
基礎コンクリート面に断熱レンガ(B5)を敷く
断熱レンガで、基礎セメントのひび割れや沈みを防止する
耐火レンガを2段重ねにしても良かったと思います
(断熱レンガはもろくて強度が低い) |
 |
2006年4月
断熱レンガの形を整えて凹凸に合わせる
(柔らかいため、形を整えるのが容易) |
 |
2006年4月
断熱レンガの形を整える |
 |
2006年4月
断熱レンガの形を整える |
 |
2006年4月
断熱レンガの形を整える |
 |
2006年4月
断熱レンガの形を整える |
 |
2006年4月
断熱レンガの上に、耐火レンガ(SK32)を並べる |
 |
2006年5月
断熱レンガの上に、耐火レンガ(SK32)を並べる |
 |
2006年5月
断熱レンガの上に、耐火レンガ(SK32)を並べる
各部調整中
基礎石積みの隙間をセメントで埋める |
 |
2006年5月
断熱レンガ・耐火レンガの整形中 |
 |
2006年5月
耐火レンガ調整中 |
 |
2006年5月
耐火レンガ整形中 |
 |
2006年5月
窯床面調整 |
 |
2006年6月
窯の扉設計
扉の大きさは、ダンボールにて模型を作成し取り合いを検討してから最終サイズを決定した
(間口400mm) |
 |
2006年6月
窯の扉周り耐火レンガの計画 |
 |
2006年6月
扉は自前で設計し、近所の鉄工所に製作を依頼
|
 |
2006年6月
石組みとレンガの隙間をセメントにて整形
鉄工所に依頼した扉が完成するまで、レンガ積み上げ用木枠と基礎石組みの目地埋めを行う |
 |
2006年6月
扉及び木枠完成
木枠はベニヤ板で1/4ずつ製作し組み合わせした
木枠は完成後燃やしてしまう |
 |
2006年6月
木枠と窯扉の位置調整 |
 |
2006年6月
木枠と扉の位置決定 |
 |
2006年6月
全体の取り合い |
 |
2006年6月
扉開放状態を確認 |
 |
2006年6月
扉開放状態 |
 |
2006年7月
扉の化粧(リベット)・蝶番最終調整・耐熱塗装完了 |
 |
2006年7月
扉周りの耐火レンガ整形及び取り合い調整 |
 |
2006年7月
耐火レンガ切断・整形
スライド丸鋸で耐火レンガを切断
(ダイヤモンドカッターを装着)
ベニヤ板で木枠を作り、水を流しながら耐火レンガを切断した
(ノウハウは石材店社長に教わった) |
 |
2006年7月
耐火レンガ整形中
耐火レンガを切断し整形するのに、大半の時間を費やすことになった
耐火レンガ等すべての耐火物は、
三石耐火煉瓦(株)にて購入
http://mtaika.jp/
対応が非常に良く、好印象であった |
 |
2006年7月
耐火レンガ整形・レンガ積み |
 |
2006年7月
耐火レンガ積み
1段目 |
 |
2006年7月
耐火レンガ積み
1段目 |
 |
2006年7月
耐火レンガ
扉周り・一段目積み上げ |
 |
2006年7月
1段目の並びを上から見たところ |
 |
2006年7月
1段目側面 |
 |
2006年7月
1段目完成 |
 |
2006年7月
2段目完成 |
 |
2006年7月
2段目を上から見たところ |
 |
2006年7月
3段目積み上げ中 |
 |
2006年7月
3段目積み上げ中 |
 |
2006年7月
3段目4段目仮組中 |
 |
2006年7月
3段目4段目完成 |
 |
2006年7月
扉上部耐火レンガ整形・仮組み |
 |
2006年7月
扉上部耐火レンガ完成 |
 |
2006年7月
8段目までの仮組み |
 |
2006年7月
仮組み全体写真 |
 |
2006年7月
仮組み全体写真 |
 |
2006年7月
5〜7段目の隙間が大きいために、レンガの形を再び整形することにした
(レンガ上部を削り、ぴったり合うように調整) |
 |
2006年7月
6段目整形・配置 |
 |
2006年7月
6段目配置 |
 |
2006年8月
扉周りの窯球面部とのつながりは、プラスチック耐火物(アサヒプラストPL34)を打ち込んだ
プラスチック耐火物はかたい粘土状のため、キャスタブル耐火物(耐火セメント)よりも使用しやすい
(価格が高いのが難点) |
 |
2006年8月
扉横部分プラスト打ち込み
ハンマーで叩きながらプラストをしっかり打ち込む |
 |
2006年8月
扉上部プラスト打ち込み |
 |
2006年8月
窯最上部レンガ調整・整形 |
 |
2006年8月
窯最上部レンガ調整・整形 |
 |
2006年8月
最上部の調整にともなって、6段目の隙間を調整 |
 |
2006年8月
最終積み上げ中 |
 |
2006年8月
扉周りプラスト打ち込み
プラストは当初見積もっていた量よりも多く必要であった
(最終的に25kg×2箱を要した)
足りなかったプラストを追加注文し2回に分けて打ち込んだため、後に熱を加えた時に境界部分にヒビが入り、早乙女主水之介状態となってしまった
|
 |
2006年8月
扉上部プラスト打ち込み状態 |
 |
2006年8月
プラスト打ち込み |
 |
2006年8月
扉周りプラスト修正 |
 |
2006年8月
6段目と扉周りのプラスト打ち込みが完成 |
 |
2006年8月
6段目の配置 |
 |
2006年8月
6段目までが完成 |
 |
2006年8月
最上部(8段目)レンガ整形と調整 |
 |
2006年8月
耐火レンガ積みが完了
周囲のチェック
隙間が大きい部分は組み直しと並べ直しを行った |
 |
2006年8月
全体チェック |
 |
2006年8月
最上部の隙間にプラストを打ち込み |
 |
2006年8月
最上部の状況 |
 |
2006年8月
最上部の最終調整 |
 |
2006年8月
窯製作工事完了 |
 |
2006年8月
全体写真その1 |
 |
2006年8月
全体写真その2 |
 |
2006年8月
全体写真
(横から) |
 |
2006年8月
上部 |
 |
2006年8月
上部 |
 |
2006年8月
全体写真
(横から) |
 |
2006年9月
窯の上部に雨よけの屋根をつけた
屋根も自作したかったが力尽きて工務店に制作依頼した
(すぐ横に念願のウッドデッキも同時に施工依頼)
写真は木枠を燃やす準備 |
 |
2006年9月
内部のレンガを支えている木枠を燃やす
窯の構造と耐熱性が確かかどうかの確認となる |
 |
2006年9月
木枠燃焼中 |
 |
2006年9月
木枠が完全に燃焼した状態
レンガの崩落や割れなどは全くなかった |
 |
2006年9月
森林組合より紹介して頂き、薪を格安にて入手 |
 |
2006年9月
試運転後、初めて薪で火入れ |
 |
2006年9月
煙突がなくても良く燃えるものですね |
 |
2006年9月
ピザ、初焼き |
 |
2006年9月
ピザを投入 |
 |
2006年9月
初めてのピザが焼けました |
 |
2006年9月
窯内部の燃焼状態 |
 |
2006年9月
ピザ完成 |
 |
2006年9月
我が家特製ピザ |
 |
2006年9月
余熱で天然酵母仕込みのパンを焼きました |
 |
2006年9月
余熱で天然酵母仕込みのパンを焼きました |
 |
2006年9月
余熱で天然酵母仕込みの田舎パンを焼きました |
 |
2006年9月
窯全体写真 |
 |
2006年9月
窯全体写真
(ウッドデッキより) |